Откатная холодильная дверь Север НТ-ОХД 800*2000/120

Код товара: 008-457

Сравнить

Версия для печати

В избранное

0

78 582 ₽
В корзину
0 шт
Расчет стоимости доставки
Откуда
Куда
Рассчитать
Расчет стоимости доставки указан приблизительный, более точный расчет Вам может осуществить сотрудник транспортной компании.
Получить консультацию в Max
Max
Получить консультацию в Max

Откатная холодильная дверь Север НТ-ОХД 800*2000/120 – это оптимальное решение для складов и помещений с регулируемым температурным режимом. Она идеально подходит для холодильных камер с интенсивным грузооборотом, где дверь часто открывают и закрывают. Дверь предназначена для установки в средне- и низкотемпературные промышленные холодильные камеры, склады и терминалы. Ее конструкция минимизирует «мертвое» пространство, необходимое для открытия, что особенно важно в условиях ограниченной площади.


Конструктивные особенности:
 

  • Надежность и удобство: Конструкция двери обеспечивает легкое и плотное закрывание и открывание без значительных усилий. Монорельсовая система позволяет двери автоматически герметизироваться под собственным весом, гарантируя надежность и удобство эксплуатации.
  • Полотно двери: Изготовлено из оцинкованного и окрашенного листового металла с наполнителем из пенополиуретана, что обеспечивает высокую теплоизоляцию, долговечность и устойчивость к внешним воздействиям.
  • Низкотемпературное исполнение: Двери предназначены для эксплуатации при температурах до -45°С. Они комплектуются двойным уплотнительным контуром и обогревающими ПЭНами, встроенными в алюминиевый профиль на дверном проеме, что предотвращает примерзание и обеспечивает стабильную работу даже в экстремально низких температурах. Толщина дверного полотна составляет 120 мм.

Откатная дверь – это надежное и практичное решение для объектов с интенсивным грузооборотом, где ключевыми требованиями являются энергоэффективность, удобство эксплуатации и минимизация теплопотерь. Она идеально подходит для помещений, где важно обеспечить быстрое и легкое открывание и закрывание, сохраняя при этом стабильный температурный режим.



Изображение товара, представленного на фото, может отличаться от его фактического вида.
Показать все

Ширина светового проема800 мм

Высота светового проема2000 мм

Температурный режимНизкотемпературный (до -25)

Толщина120 мм

БрендСевер

Все откатные холодильные двери толщиной 120 мм

Все низкотемпературные откатные холодильные двери

Все откатные холодильные двери Север

Оставить отзыв
Еще никто не оставил отзыв на этот товар
Буклет двери изотермические и технологические ТМ Север.pdf
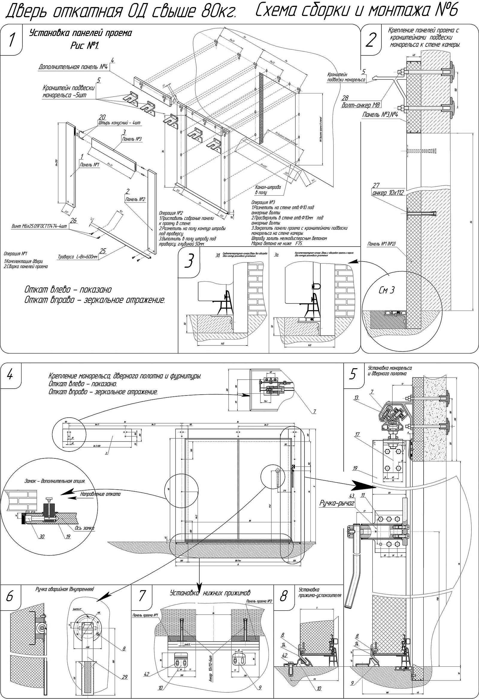
Схема монтажа двери.jpg

С этим товаром покупают

Сортировка

Сбросить
Применить